箕面市稲2丁目 新築戸建 5区画分譲地

-

大阪府箕面市2丁目

阪急箕面線「牧落」駅徒歩20分

北大阪急行電鉄「千里中央」駅徒歩27分

北大阪急行電鉄「千里中央」駅

価格
-
間取り/建物面積
-/-
所在地
大阪府箕面市2丁目
築年
2017年9月(予定)
交通

阪急箕面線牧落」駅 徒歩20分

北大阪急行電鉄千里中央」駅 徒歩27分車5分

北大阪急行電鉄千里中央」駅 車12分

箕面市稲2丁目 新築戸建 5区画分譲地の基本情報

物件名
箕面市稲2丁目 新築戸建 5区画分譲地
価格
-
建物面積
-
土地面積
-(-)
築年月
2017年9月(予定)
総戸数
-
所在地
大阪府箕面市2丁目
交通

阪急箕面線牧落」駅 徒歩20分

北大阪急行電鉄千里中央」駅 徒歩27分車5分

北大阪急行電鉄千里中央」駅 車12分

箕面市稲2丁目 新築戸建 5区画分譲地の詳細情報

設備条件
  • 閑静な住宅地
設備(その他)
    -
土地権利
所有権
国土法届出
不要
用途地域
第二種中高層住居専用
取引態様
仲介
引渡し
相談
備考
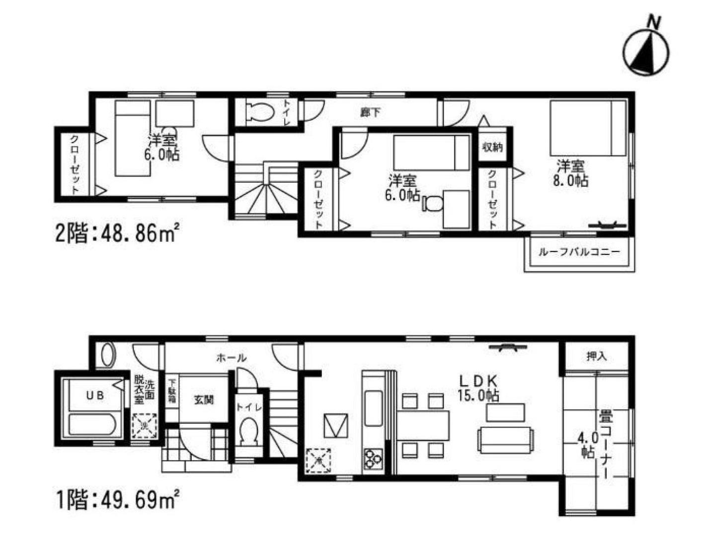
高級感のあるデザインに充実の部屋数を誇る当社の4LDK物件。快適な室内と落ち着いた外観が魅力の2017年9月築の物件。建物面積は98.55平米となっており広さも十分ではないでしょうか。家賃3,980万円と、納得の価格帯である住みよいお部屋です。コチラの物件は、新築の戸建て物件です。新生活を新築で始めませんか。斜面傾斜がない平坦地でおいしい作物を育ててみませんか。こちらの新築一戸建は落ち着いた雰囲気の閑静な住宅街にあります。この物件はトイレが2ヶ所にあり暮らしやすい環境となっています。ニーズの高い南側道路の新築一戸建はいかがですか。満足のいく一戸建てを選ぶなら、info@hibiken.co.jpまでお気軽にご依頼下さい。箕面市の阪急箕面線牧落付近にある物件情報を多種多様にご案内しております。

箕面市稲2丁目 新築戸建 5区画分譲地のコメント(おすすめポイント)

家族皆で暮らすなら広々とした4LDKの物件。快適な室内と落ち着いた外観が魅力の平成29年9月築の物件。建物面積98.55㎡もありますので、ご検討ください。物件の購入をご予定なら、3,980万円のこちらの物件。新築戸建て物件は、室内も清潔感があり、清々しい環境です。静かで生活のしやすい閑静な住宅街にある物件です。トイレが二つございますので、朝に混み合って困ることもございません。斜面がないので、自転車も徒歩も快適な物件となっています。南側は道路に面しており、貴重な物件です。箕面市にある阪急箕面線牧落周辺の戸建て情報を豊富に取り扱っています。お客様のこだわり条件を0120-561-272またはinfo@hibiken.co.jpまでお聞かせ下さい。

周辺施設

  • 箕面市立第五中学校の画像

    中学校

    箕面市立第五中学校

    301m(4分)

  • 紅葉夢 保育園の画像

    保育園

    紅葉夢 保育園

    443m(6分)

  • ライフ箕面店の画像

    スーパー

    ライフ箕面店

    479m(6分)

  •  業務スーパー坊島店の画像

    スーパー

    業務スーパー坊島店

    497m(7分)

  • 箕面市立病院の画像

    総合病院

    箕面市立病院

    518m(7分)

  • MEGAドン・キホーテの画像

    生活雑貨店

    MEGAドン・キホーテ

    519m(7分)

  • コープこうべ箕面中央(新箕面駅まで平坦地を約2キロ)の画像

    スーパー

    コープこうべ箕面中央(新箕面駅まで平坦地を約2キロ)

    532m(7分)

  •  クスリ・キリン堂坊島店の画像

    ドラッグストア

    クスリ・キリン堂坊島店

    554m(7分)

  •  箕面レディースクリニック分院小児科・麻酔科の画像

    小児科

    箕面レディースクリニック分院小児科・麻酔科

    586m(8分)

  • 箕面市立 中小学校の画像

    小学校

    箕面市立 中小学校

    649m(9分)

  • ホームセンターコーナン箕面萱野店の画像

    ホームセンター

    ホームセンターコーナン箕面萱野店

    653m(9分)

  • 箕面西小路郵便局の画像

    郵便局

    箕面西小路郵便局

    803m(11分)

  • 箕面市役所の画像

    市役所・区役所

    箕面市役所

    855m(11分)

  • 萱野南図書館の画像

    図書館

    萱野南図書館

    1053m(14分)

  • イオン箕面店の画像

    ショッピングセンター

    イオン箕面店

    1507m(19分)

  • ヤマダ電機LABI千里店の画像

    家電製品

    ヤマダ電機LABI千里店

    1921m(25分)

近隣の物件

  1. 箕面市小野原西3丁目

    4SLDK (141.11㎡)

    8,000万円

  2. 箕面市桜ケ丘4丁目

    3SLDK (91.08㎡)

    7,480万円

  3. 箕面市外院3丁目

    4SLDK (89.22㎡)

    4,498万円

  4. 箕面市桜5丁目

    5LDK (145.96㎡)

    6,500万円

よく見られている物件

  1. 箕面市小野原西3丁目

    6DK (158.54㎡)

    12,990万円

  2. 箕面市半町4丁目

    3LDK+S(納戸) (108.13㎡)

    5,490万円

  3. 箕面市新稲6丁目

    4LDK (102.05㎡)

    5,390万円

  4. 箕面市半町4丁目

    3LDK+S(納戸) (109.35㎡)

    5,490万円

箕面市稲2丁目 新築戸建 5区画分譲地

お気軽にお問い合わせください

LINEからお問い合わせ 無料お問い合わせ

株式会社MIKIホーム

072-720-5662

9:00 ~ 19:00

(休:毎週水曜日)

弊社について 物件検索 強み SE構法 会社概要 お問い合わせ